Projekt technologiczny restauracji to kolejny krok, jeśli zalazłeś idealny lokal na swój gastronomiczny biznes i chcesz uzyskać wszystkie niezbędne pozwolenia na start. Czy projekt gastronomii jest zawsze konieczny? Sprawdź odpowiedzi na najczęściej zadawane pytania i dowiedz się, na co zwrócić uwagę, aby uniknąć najczęstszych błędów.
Czym jest projekt technologiczny lokalu gastronomicznego?
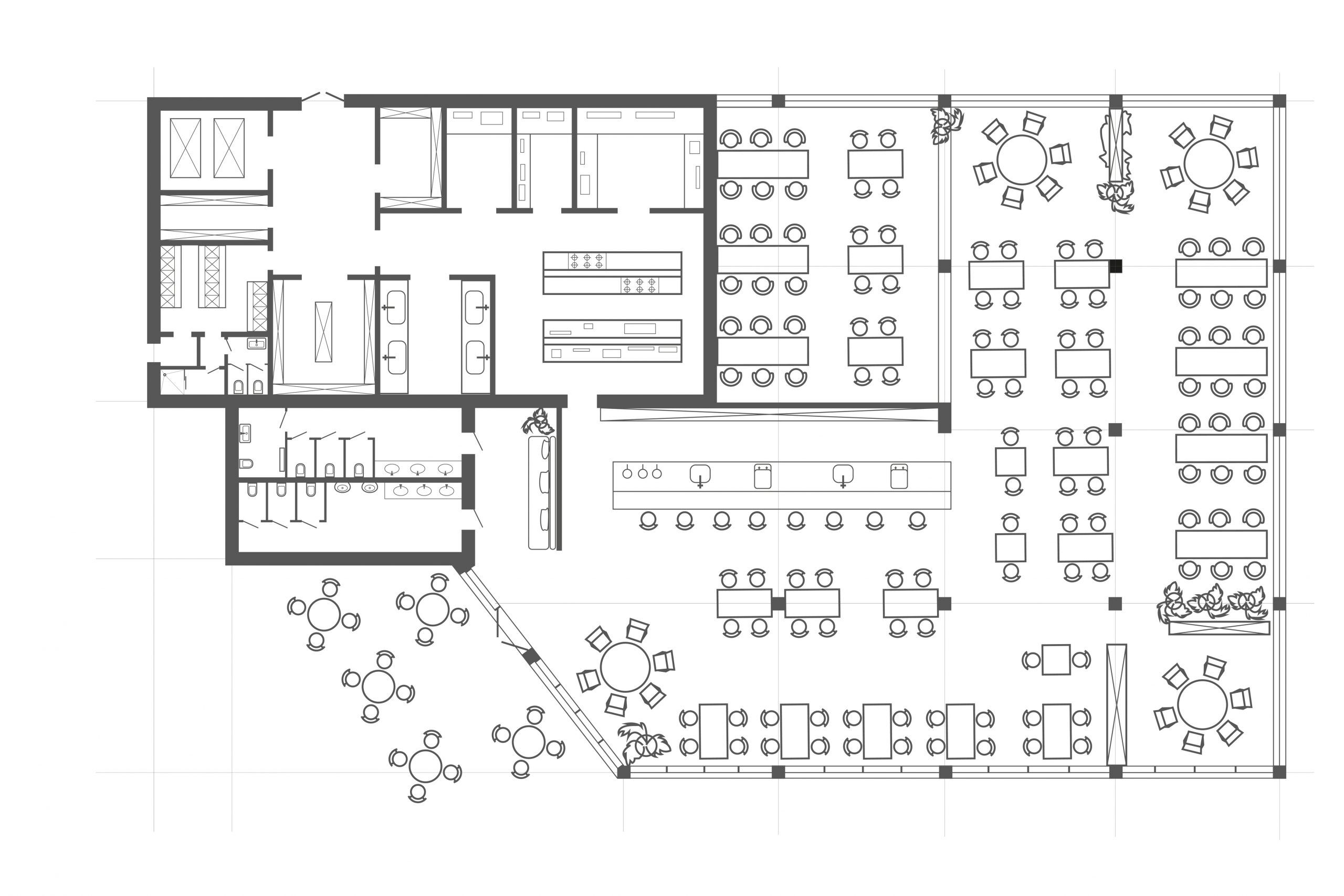
Projekt technologiczny lokalu gastronomicznego to rysunek, na którym zaznaczone są wszystkie wymagane elementy, jak układ pomieszczeń, lokalizacja sprzętów i układ tzw. ciągów technologicznych. Nawet jeśli otwierasz małą restaurację, projekt powinien poprzedzić prace remontowe. Dostosowanie pomieszczeń do wymagań gastronomii jest regulowane przepisami prawa, zwłaszcza jeśli w danym miejscu nie była wcześniej prowadzona tego typu działalność. Jeśli przejmujesz lokal po innym restauratorze, oznacza to, że projekt technologiczny został już przygotowany, co pozwoli ci zaoszczędzić nieco funduszy, chyba że zakładasz gruntowną przebudowę lokalu.
Opracowanie projektu lokalu gastronomicznego wymaga dokładnego przemyślenia każdej decyzji, aby restauracja nie tylko uzyskała stosowne pozwolenia, ale też spełniała wszystkie oczekiwania.
Dlaczego potrzebujesz projektu technologicznego lokalu gastronomicznego?
Projekt technologiczny kuchni i pozostałych pomieszczeń lokalu jest konieczny nie tylko ze względów praktycznych. To dokument, którego przedłożenia wymaga przy nowootwartej restauracji sanepid. Wzór projektu technologicznego do sanepidu można znaleźć na stronach internetowych. Warto też zasięgnąć opinii bardziej doświadczonych restauratorów, którzy mają już ten etap za sobą i pomogą uniknąć najczęstszych błędów.
Pamiętaj też, że przedstawiciele sanepidu mogą też wymagać opinii rzeczoznawcy do spraw sanitarno-epidemiologicznych na dokumencie. Nie jest to regułą, ale może się zdarzyć zwłaszcza przy spornych kwestiach, które wymagają rozstrzygnięcia przez specjalistę. Rzeczoznawca jest mianowany przez Głównego Inspektora Sanitarnego i ma prawo opiniować w jego imieniu dokumenty projektowe, przygotowane na potrzeby gastronomii, jeśli chodzi o kwestie higieniczne i zdrowotne.
Jakie są elementy projektu technologicznego lokalu gastronomicznego?
Projekt lokalu gastronomicznego składa się z dwóch części – rysunku i opisu. Wykonuje się go na podstawie istniejącego projektu architektonicznego, na którym uwzględnia się wymogi charakterystyczne dla gastronomii, czyli:
- koncepcję pomieszczeń,
- lokalizację poszczególnych urządzeń,
- koncepcję ciągów technologicznych.
Koncepcja pomieszczeń
Niezależnie czy przygotowujesz projekt małej restauracji, czy projekt technologiczny dużego lokalu, elementy, które powinny zostać w nim ujęte, są podobne. W projekcie technologicznym lokalu powinny zostać uwzględnione pomieszczenia przeznaczone dla gości oraz te dla obsługi, m.in.:
- sala lub sale do konsumpcji, czyli pomieszczenia, w których przyjmujemy gości,
- WC dla gości (z przedsionkiem, czyli wydzielonym miejscem na umywalkę i oddzielnym na toaletę) i WC dla personelu,
- szatnia dla gości,
- bufet, czyli to miejsce, w którym wydawane są posiłki,
- zaplecze bufetu, czyli kuchnia wraz z ciągami technologicznymi w kuchni,
- zmywalnia.
Lokalizacja urządzeń i najważniejszych elementów wyposażenia
Aby sanepid zatwierdził projekt technologiczny lokalu, muszą być uwzględnione w nim najważniejsze sprzęty, m.in. lodówki, zlewy, zmywaki itp., ale też miejsca do siedzenia i miejsca do spożywania dań. Jako elementy wyposażenia wymienić trzeba też krzesła, taborety, stoły, ławy, bary i stoliki. Również nietypowe meble typu DIY.
Czym są ciągi technologiczne?
Ciągi technologiczne ułatwiają wykonywanie pracy, ponieważ czynności kuchenne przebiegają według określonego schematu. Szczególnie ważny jest ciąg technologiczny w kuchni. Prawidłowe wyznaczenie stref ułatwia i przyspiesza pracę, ale jest też ważne, jeśli chodzi o higienę sporządzania posiłków, ponieważ wymusza pracę na różnych stanowiskach z żywnością na różnym etapie przygotowania. Ciąg technologiczny w kuchni rozpoczyna się od lodówki, za nią powinien być blat do pracy z surowymi produktami, zlew z kolejnym blatem, na którym produkty podlegają dalszej obróbce i zakończony jest kuchenką. Bardzo ważne, aby blaty były na tyle duże, że pozwalają na swobodną pracę z żywnością.
Jak przygotować projekt technologiczny lokalu gastronomicznego?
Warto wiedzieć, że przepisy nie regulują tego, kto powinien przygotować projekt technologiczny. Można go wykonać samodzielnie lub zlecić, chociaż ta druga opcja jest zdecydowanie bezpieczniejsza, mimo że wiąże się z dodatkowym wydatkiem. Aby samodzielnie przygotować nawet projekt małej restauracji dobrze mieć już odpowiednie doświadczenie. Jeśli debiutujesz w gastronomii, musisz dążyć do tego, aby uniknąć kosztownych błędów początkujących.
Niezależnie od tego, kto wykona projekt technologiczny, musisz przygotować do wglądu projekt architektoniczny. Chodzi nie tylko o orientację w przestrzeni, ale też informacje, gdzie znajdują się poszczególne instalacje: gazowa, elektryczna czy kanalizacyjna, gniazdka, a także ciągi wentylacyjne.
Na co zwrócić uwagę przy wyborze projektanta projektu technologicznego lokalu gastronomicznego?
Nie ma znaczenia, czy przygotowujesz projekt technologiczny cukierni, czy projekt technologiczny pizzerii ważne, aby powierzyć go doświadczonym osobom, ponieważ w ten sposób unikniesz wielu błędów. Szukając projektanta, dobrze zasięgnąć opinii innych restauratorów, którzy mają już za sobą sporo doświadczeń. Jeśli decydujesz się na znalezione w Internecie biuro, sprawdź wcześniejsze realizacje pracujących tam projektantów. Idealnie, jeśli będziesz miał szansę porozmawiać z właścicielami lokali, które są w portfolio.
Jako debiutująca osoba w gastronomii powinieneś szukać zaufanych partnerów i nie bać się korzystać z proponowanych przez nich rozwiązań. Serwis UpMenu wspiera restauratorów na każdym etapie prowadzonej działalności. Przygotowując projekt technologiczny lokalu, musisz myśleć już o biznesplanie i wybrać stronę internetową, która pozwoli ci wyróżnić się na tle konkurencji. Korzystając z rozwiązań oferowanych przez UpMenu, tworząc stronę, możesz ustawić opcję dodatkowej opłaty, którą uiszcza klient, decydując się na odbiór osobisty lub skorzystać z funkcji ustawienia stawek VAT przy produktach w menu – podatek domyślny lub od kwoty dostawy.
Jakie są koszty projektu technologicznego lokalu gastronomicznego?
Koszty kompleksowych projektów technologicznych zależą od wielu czynników. Większość firm, które profesjonalnie zajmują się tego typu dokumentacją, każdorazowo ustala cenę indywidualnie. Projekty wykonywane są z uwzględnieniem unijnych przepisów HACCP, opiniowane przez rzeczoznawców, sanepid i sporządzone zgodnie z zasadami BHP. Zamawiając pełny projekt technologiczny restauracji, należy liczyć się z wydatkiem między 1500 a 2000 zł. Jeśli szukasz oszczędności, możesz zdecydować się na koncepcję wyposażenia z projektem instalacji, co ogranicza wydatki do około 500 – 1000 zł.
Wybierając projektanta lub biuro projektowe, warto już w trakcie rozmowy wstępnej ustalić ramy kosztorysu.
Jakie są najczęstsze błędy w projektach technologicznych lokali gastronomicznych?
Jeśli nie masz doświadczenia, a decydujesz się na samodzielne przygotowanie projektu technologicznego, nawet projekt małej gastronomii może być naprawdę dużym wyzwaniem. Pamiętaj, aby uniknąć prostych błędów, które mogą opóźnić zatwierdzenie projektu przez sanepid lub wygenerować kolejne, niepotrzebne koszty. Jeśli zastanawiasz się, jakie są najczęstsze błędy w projektach technologicznych, przygotowaliśmy listę.
- Zdarza się, że projekt technologiczny jest sporządzony na podstawie nieaktualnego projektu architektonicznego, co już na etapie opracowania koncepcji generuje błędy.
- Koncepcja ciągów technologicznych, w której przecinają się tzw. drogi czyste z drogami brudnymi. Droga brudna to ta, którą wracają naczynia z sali konsumpcyjnej, nie może się ona przecinać z drogą czystą, czyli np. miejscem, w którym wydawane są posiłki – bufetem.
- Brak wyznaczonego i oddzielonego miejsca na przechowywanie środków czystości.
- Źle opracowany projekt technologiczny kuchni.
Błędów może być znacznie więcej, powyżej wspomnieliśmy jedynie o tych najczęstszych. Tak naprawdę na etapie planowania każda, nawet najmniejsza decyzja, powinna być dokładnie przemyślana. Właśnie dlatego sporządzenie projektu technologicznego restauracji warto zlecić specjalistom. Koszty późniejszej naprawy błędów mogą bowiem przewyższać cenę kompleksowego projektu.
Gdzie szukać inspiracji do stworzenia projektu technologicznego lokalu gastronomicznego?
Inspiracji do stworzenia projektu technologicznego lokalu jest wiele na stronach internetowych projektantów i biur projektowych. Po raz kolejny jednak podkreślimy, że przy opracowaniu planu gastronomii warto zdać się na specjalistów. To w końcu biznes, który ma być twoją pasją, ale także sposobem na życie.
